
Volver a Proyectos











Reforma integral de una casa en una sola planta
ArquitecturaEn construcción
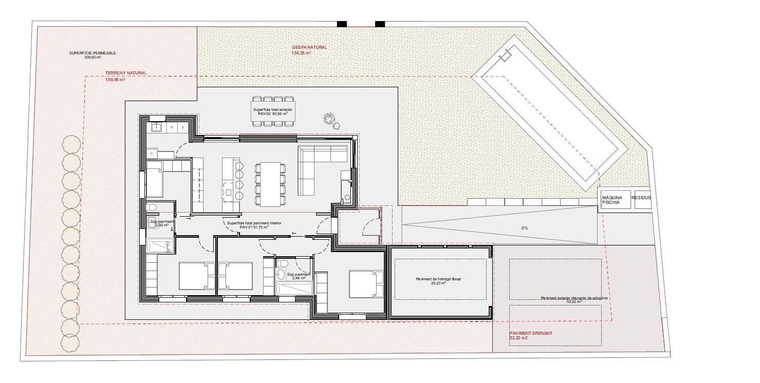
Proyecto de rehabilitación integral de una vivienda existente, actualmente en construcción.
Galería del proyecto













Proyecto de rehabilitación integral de una vivienda existente, actualmente en construcción.











